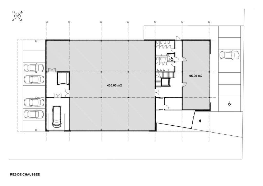
Projet industriel sur plans à Delémont | 1'700m² de surfaces modulables
Créer votre futur outil de travail !
LOSTEL SA vous propose une opportunité unique d’acquérir un bâtiment industriel neuf, pensé pour répondre aux besoins des entreprises modernes.
Des surfaces sur-mesure, prêtes à l’emploi.
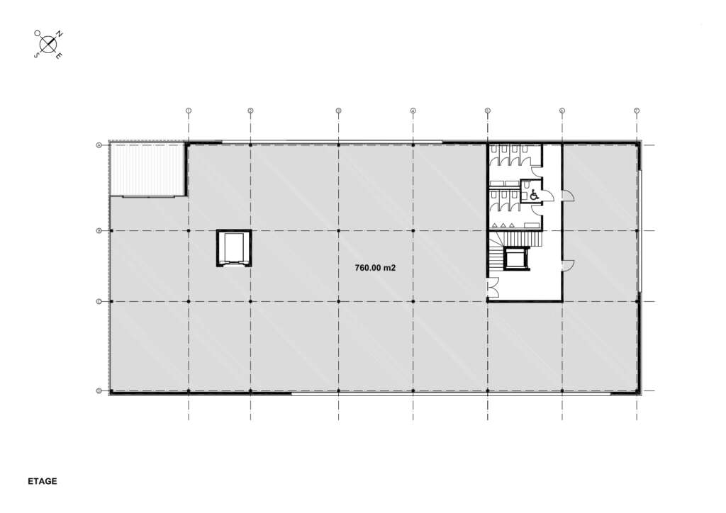
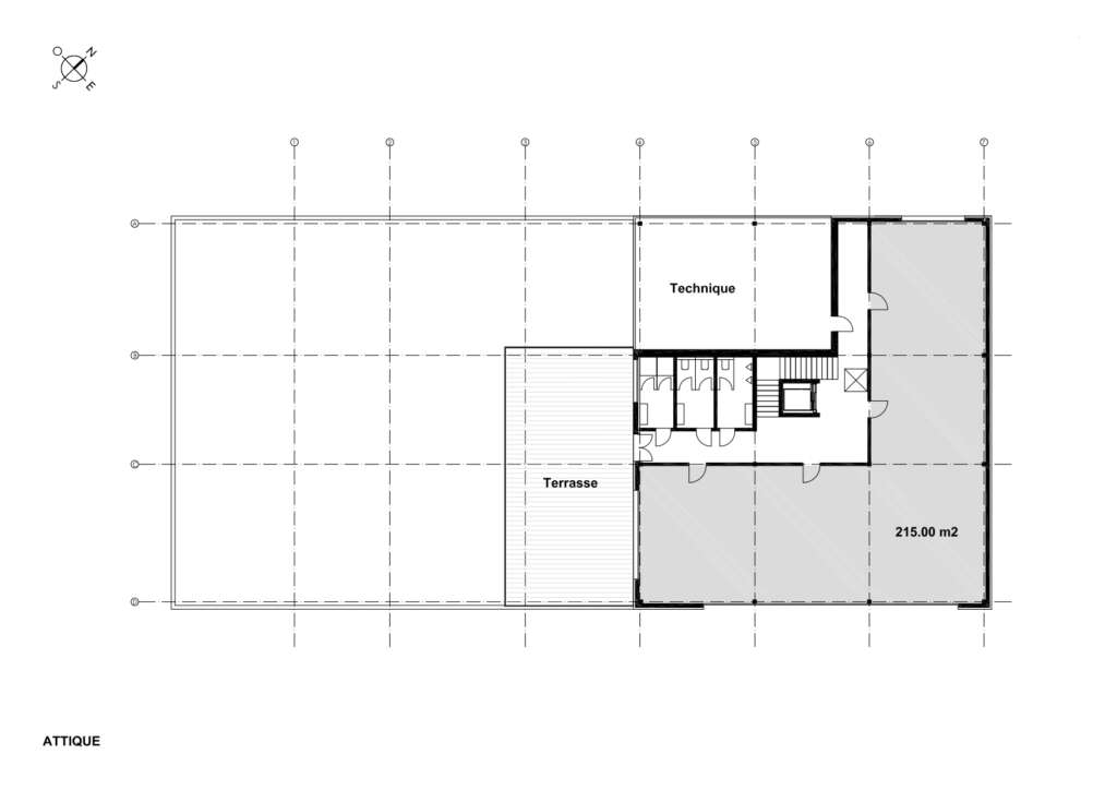
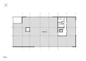
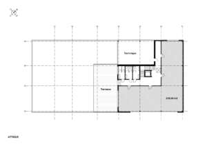
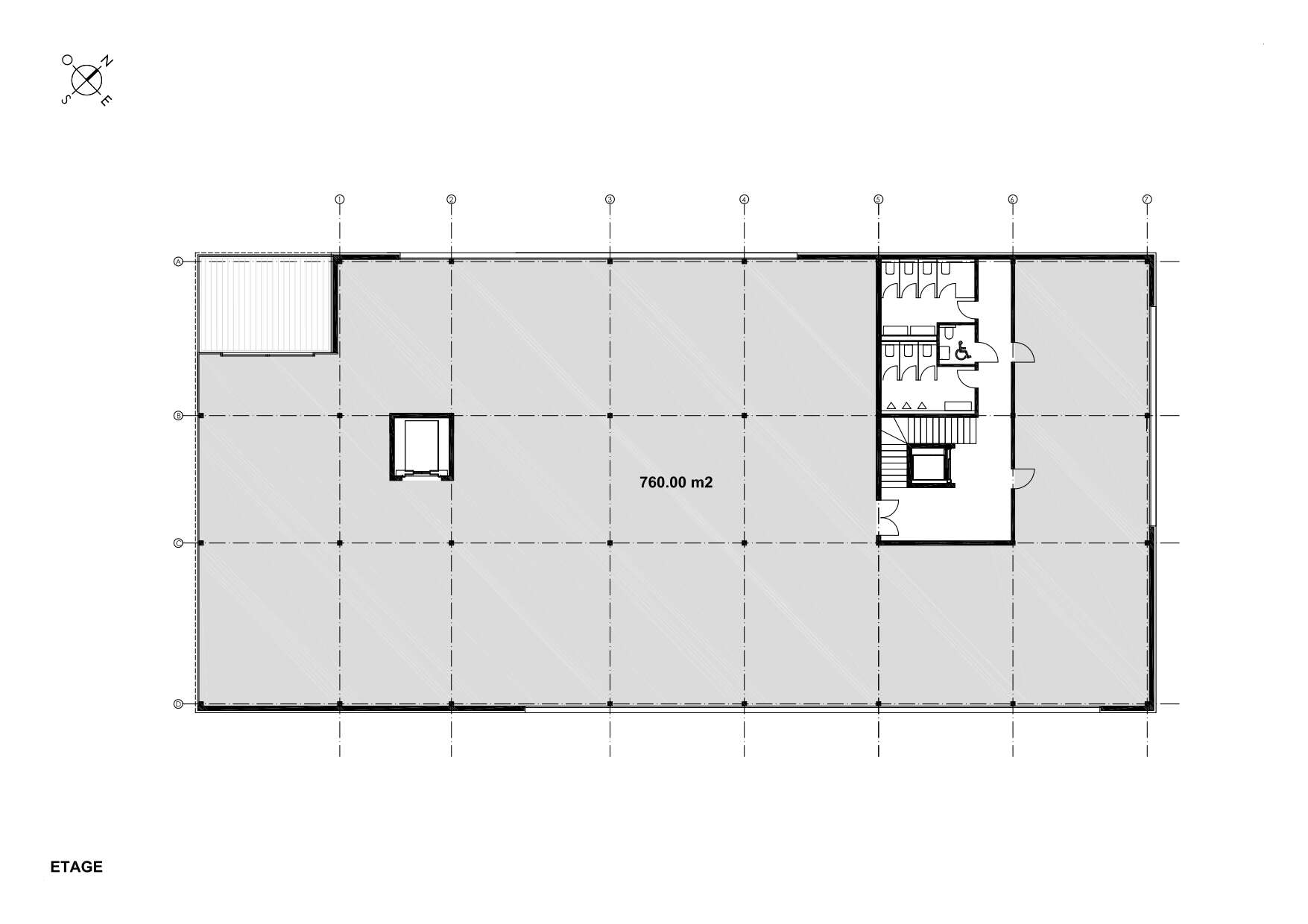
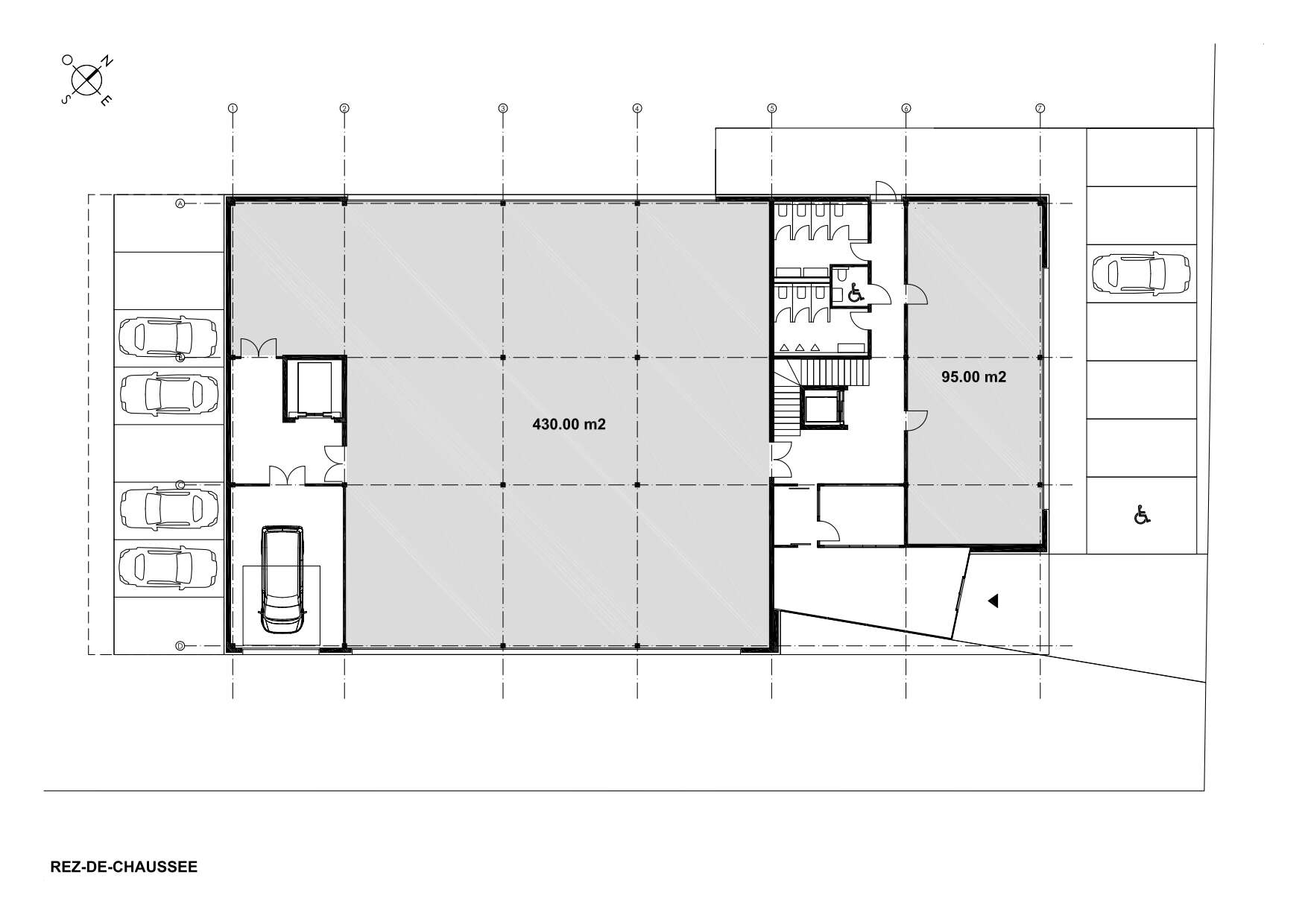
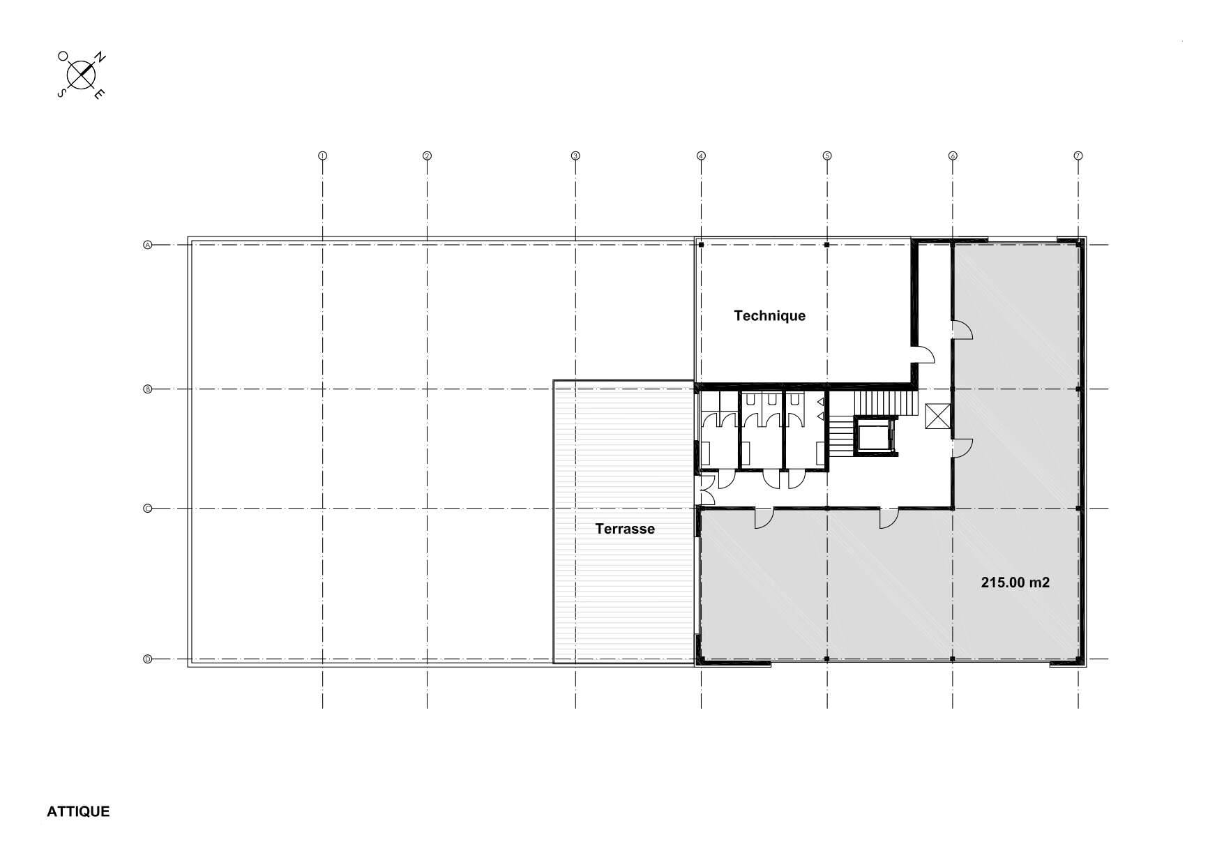
Ce projet, livré clé en main, offre des espaces entièrement modulables : ateliers, zones de production, showrooms, bureaux, zones logistiques, stockages… tout est possible.
Le bâtiment peut être configuré sur deux niveaux (rez-de-chaussée + étage), ou trois niveaux avec attique/bureaux rooftop selon vos besoins.
Une adresse stratégique pour votre activité.
Situé à Delémont, ce bâtiment bénéficie d’un emplacement visible et pratique, à proximité immédiate de l’autoroute, assurant une accessibilité optimale pour vos clients, partenaires et fournisseurs.


















