Appartements
Publié le 29 septembre 2025
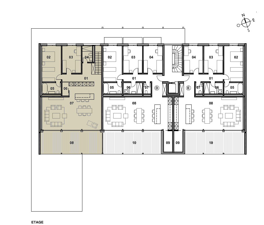
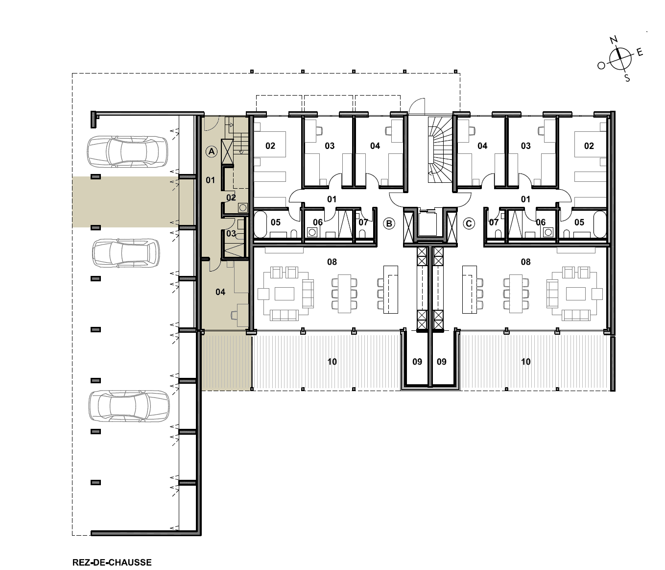
Appartement 4.5 pièces neuf à Vicques | duplex
Situé dans un petit immeuble en PPE de 7 appartements à Vicques, ce bien de 4.5 pièces en duplex offre un cadre de vie moderne et agréable, proche d’un quartier résidentiel avec de beaux espaces verts à proximité. Conçu avec des matériaux haut de gamme, il séduit par ses volumes lumineux, ses plans d’aménagement bien pensés et son isolation thermique et phonique renforcée.
Chaque appartement est livré tout équipé, avec cave et place de parc couverte. La zone verte commune est accessible à tous les résidents. Emplacement pratique à moins de 10 minutes de Delémont, à proximité de Courroux et des principales commodités.
Idéal pour les familles ou les investisseurs à la recherche d’un bien stable, rentable et bien situé.
4.5 pièces
154 m2
Au prix de
CHF 830'000.00
Disponibilité du bien : 2027
Caractéristiques du bien
✔️ Étage : duplex (RDC + étage)
✔️ Extérieur : 2 terrasse de 34 m² et 11.5 m²
✔️ Ascenseur
✔️ Finitions et matériaux haut de gamme
✔️ Cave et place de parc couverte
✔️ Zone verte partagée accessible à tous les résidents
✔️ Bien tangible, défensif et neuf
✔️ Rendement supérieur à l’épargne et aux obligations
Détails supplémentaires
📝 RDC 01 | Entrée / circulation : 16.5 m2
📝 RDC 02 | Buanderie : 5.5 m2
📝 RDC 03 | WC / douche : 3.4 m2
📝 RDC 04 | Chambre : 13.3 m2
📝 RDC 05 | Terrasse : 11.5 m2
📝 Étage 01 | Circulation : 11.2 m2
📝 Étage 02 | Suite parentale : 17.45 m2
📝 Étage 03 | Chambre : 13.3 m2
📝 Étage 04 | WC / douche : 4.15 m2
📝 Étage 05 | Salle de bain : 5.6 m2
📝 Étage 06 | Economat : 2.5 m2
📝 Étage 07 | Séjour / cuisine : 61.1 m2
📝 Étage 08 | Terrasse : 34.4 m2
Adresse du bien
Adresse : Vicques, Suisse


















