Appartements
Publié le 29 septembre 2025
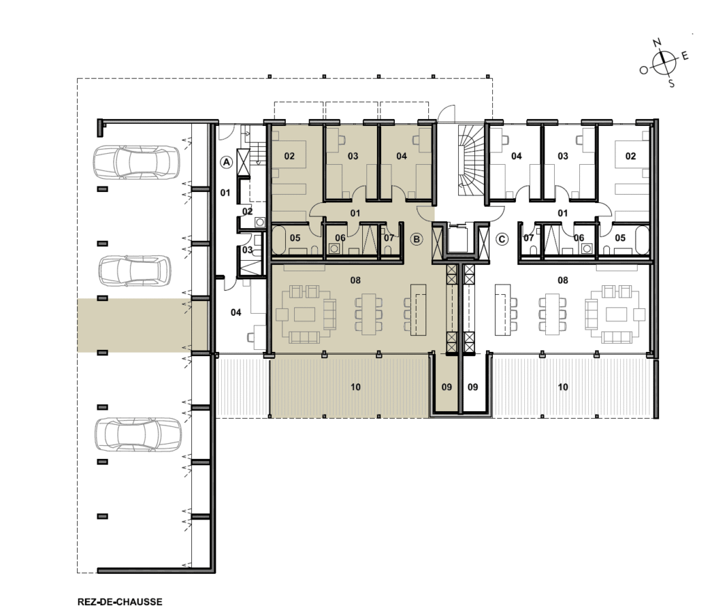
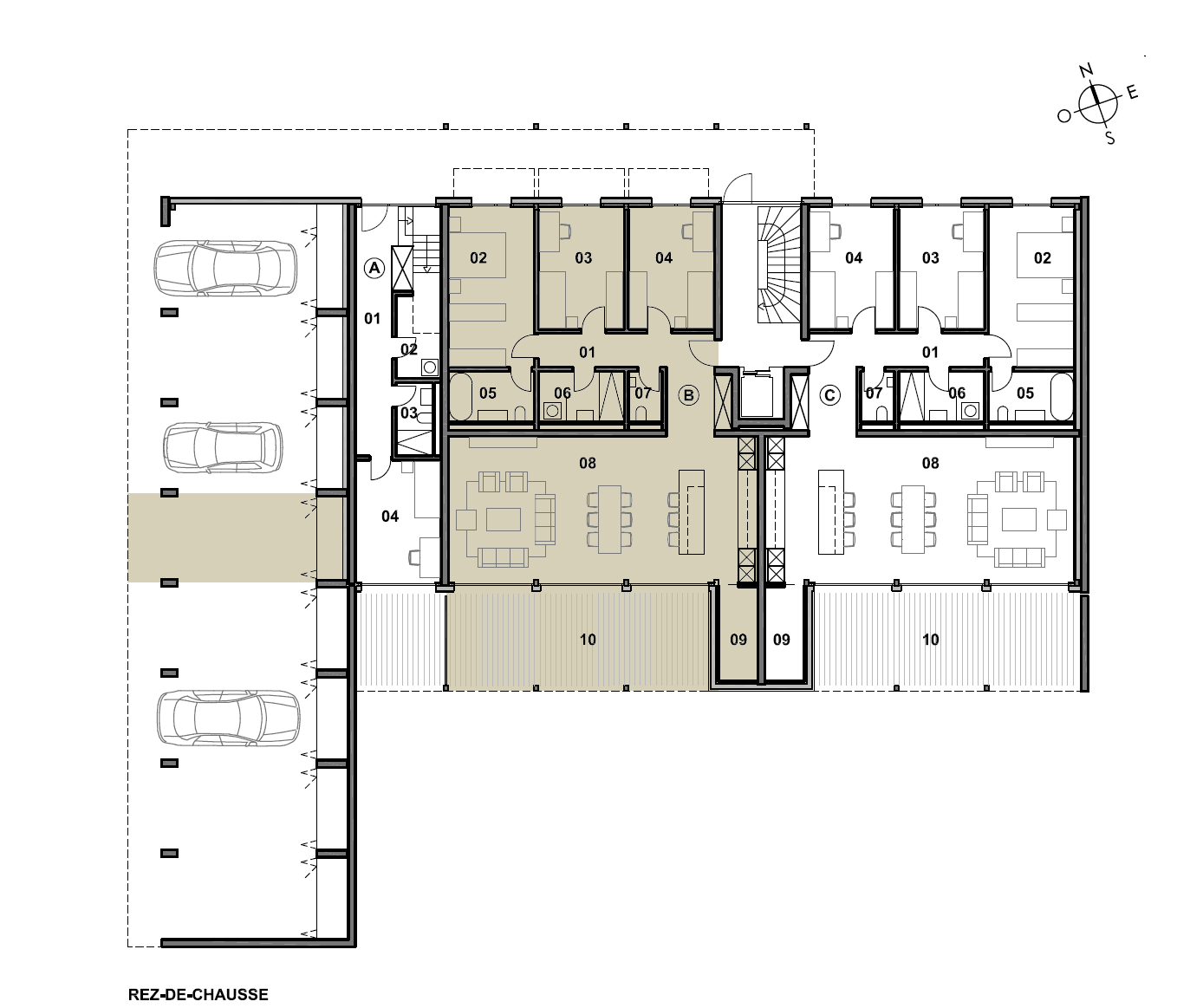
Appartement 4.5 pièces neuf à Vicques | rez-de-chaussée
Situé dans un petit immeuble en PPE de 7 appartements à Vicques, ce bien de 4.5 pièces offre un cadre de vie moderne et agréable, proche d’un quartier résidentiel avec de beaux espaces verts à proximité. Conçu avec des matériaux haut de gamme, il séduit par ses volumes lumineux, ses plans d’aménagement bien pensés et son isolation thermique et phonique renforcée.
Chaque appartement est livré tout équipé, avec cave et place de parc couverte. La zone verte commune est accessible à tous les résidents. Emplacement pratique à moins de 10 minutes de Delémont, à proximité de Courroux et des principales commodités.
Idéal pour les familles ou les investisseurs à la recherche d’un bien stable, rentable et bien situé.
4.5 pièces
133 m2
Au prix de
CHF 720'000.00
Disponibilité du bien : 2027
Caractéristiques du bien
✔️ Étage : Rez-de-chaussée
✔️ Extérieur : Terrasse de 34 m² avec accès direct à la zone verte
✔️ Ascenseur
✔️ Finitions et matériaux haut de gamme
✔️ Cave et place de parc couverte
✔️ Zone verte partagée accessible à tous les résidents
✔️ Bien tangible, défensif et neuf
✔️ Rendement supérieur à l’épargne et aux obligations
Détails supplémentaires
📝 01 | Entrée / circulation : 13.3 m2
📝 02 | Suite parentale : 17.45 m2
📝 03 | Chambre : 13.3 m2
📝 04 | Chambre : 13.3 m2
📝 05 | Salle de bain : 5.6 m2
📝 06 | Douche / buanderie : 5.6 m2
📝 07 | WC : 2.3 m2
📝 08 | Séjour / cuisine : 57.35 m2
📝 09 | Economat : 5.0 m2
📝 10 | Terrasse : 34.4 m2
Adresse du bien
Adresse : Vicques, Suisse
















