Appartements
Publié le 29 septembre 2025
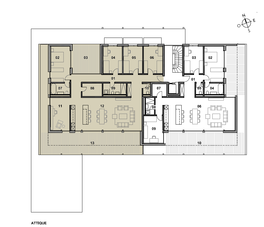
Attique 5.5 pièces neuf à Vicques | Vue panoramique et terrasse exceptionnelle
Découvrez la pièce maîtresse de notre nouvelle promotion à Vicques : un attique de standing exceptionnel de 5.5 pièces, situé dans un petit immeuble résidentiel de seulement 7 appartements. Avec une surface habitable de 181 m², cet appartement unique bénéficie d’une terrasse panoramique de 75 m² entourant le logement, offrant des vues dégagées et un cadre de vie rare.
Chaque appartement est livré tout équipé, avec cave et place de parc couverte. La zone verte commune est accessible à tous les résidents. Emplacement pratique à moins de 10 minutes de Delémont, à proximité de Courroux et des principales commodités.
Idéal pour les familles ou les investisseurs à la recherche d’un bien stable, rentable et bien situé.
5.5 pièces
181 m2
Au prix de
CHF 980'000.00
Disponibilité du bien : 2027
Caractéristiques du bien
✔️ Étage : 2ème étage en attique
✔️ Extérieur : 2 terrasses de 75.8 m² et 21 m²
✔️ Ascenseur
✔️ Finitions et matériaux haut de gamme
✔️ Cave et place de parc couverte
✔️ Zone verte partagée accessible à tous les résidents
✔️ Bien tangible, défensif et neuf
✔️ Rendement supérieur à l’épargne et aux obligations
Détails supplémentaires
📝 01 | Entrée / circulation : 27.4 m2
📝 02 | Suite parentale : 17.45 m2
📝 03 | Terrasse : 21 m2
📝 04 | Chambre : 13.3 m2
📝 05 | Chambre : 13.3 m2
📝 06 | Chambre : 13.3 m2
📝 07 | Salle de bain : 5.6 m2
📝 08 | Economat : 6.7 m2
📝 09 | Douche / buanderie : 6.7 m2
📝 10 | WC : 2.15 m2
📝 11 | Bureau : 16.1 m2
📝 12 | Séjour / cuisine : 59.0 m2
📝 13 | Terrasse : 75.8 m2
Adresse du bien
Adresse : Vicques, Suisse


















